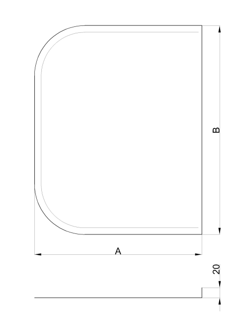
Для сохранения плоскости по периметру листа выполнено ребро жесткости. Углы листа имеют закругления – это защищает от травм и выглядит эстетично.
Изготавливается
- из зеркальной нержавеющей стали
- из оцинкованной стали
Монтируется на пол со стороны топки печи, котла или камина.
Характеристики
Размеры приведены в таблице
Для стандартного исполнения
Материал – нержавеющая сталь AISI430 толщиной 0,5 мм
Упаковка – ПЭТ

| АхВ. мм | А | В |
|---|---|---|
| 485х625 | 480 | 625 |
| 500х1000 | 477 | 990 |
| 600х1000 | 595 | 990 |
